Bring Your Renovation Project to
Life — Starting with the Right Plans
From residential upgrades to commercial renovations,
DJM Design CAD and Coordination Services turns
your vision into permit-ready drawings that keep your
project moving forward.
Renovations Don’t Start Without
the Right Plans
Most renovation projects require permits—and permits require accurate,
professional drawings. Without them, projects stall, approvals get delayed,
and costs increase.
That’s where DJM comes in.
We translate your ideas into clear, compliant CAD drawings that contractors,
municipalities, and Home Owners can trust.

Residential
Renovations
Garages, additions, remodels, and
full home projects. We create detailed
drawings that bring your ideas to life
and meet local requirements.

Commercial Renovations
Office spaces, public buildings
and tenant improvements. Our
drawings are built for efficiency,
clarity and fast approvals.

Permit & Construction Drawings
We deliver the documentation
required to move your project
forward—accurate, professional,
and ready for permit submission.
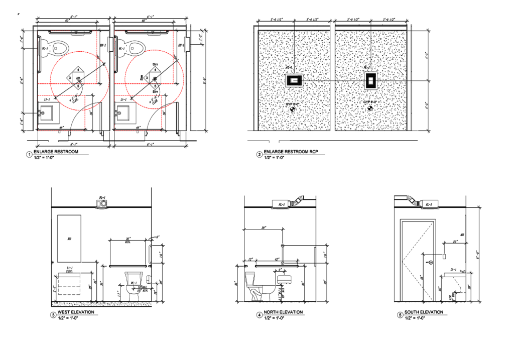
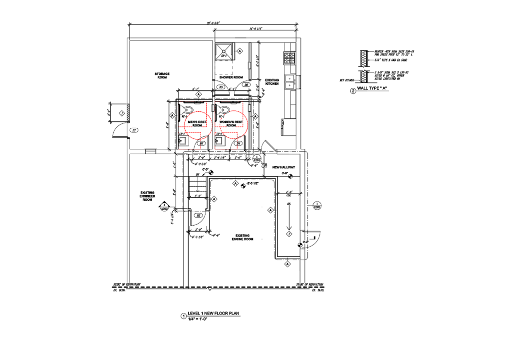
Real Projects. Real Results.
Upper Frederick
Fire Company
Commercial renovation drawings created for permit
submission and project execution.
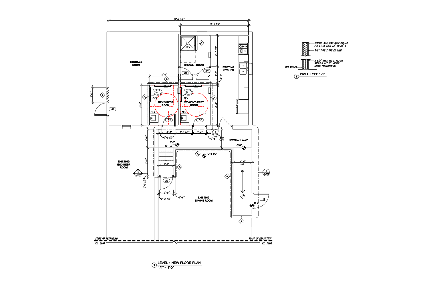
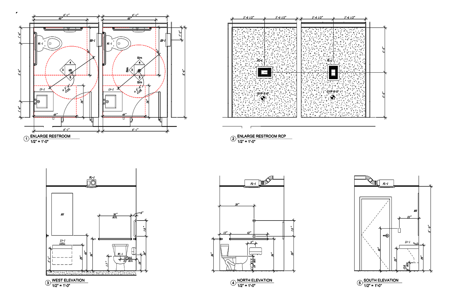
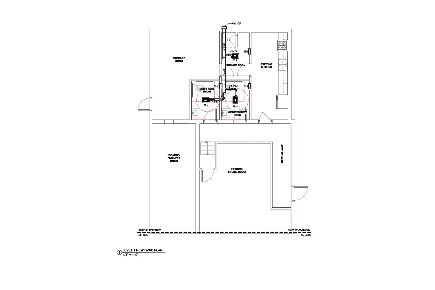
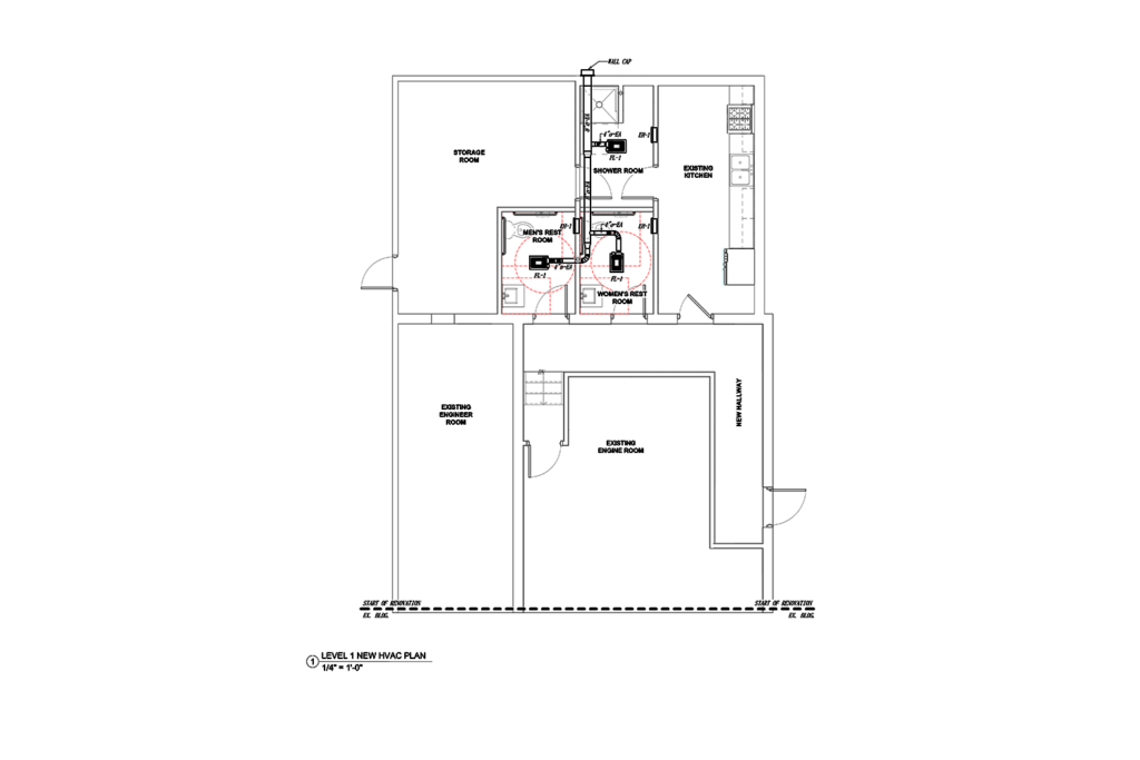
SCOPE: Interior renovation at the Upper Frederick Fire
Department transforms former storage rooms into
a modern, accessible space featuring a new shower,
two ADA-compliant restrooms, and hallway.
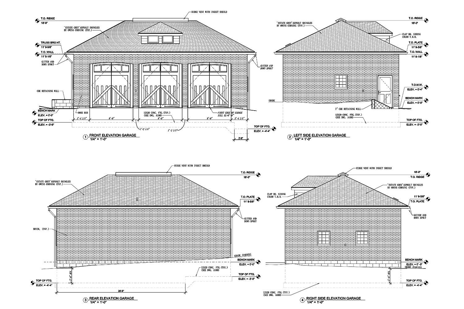
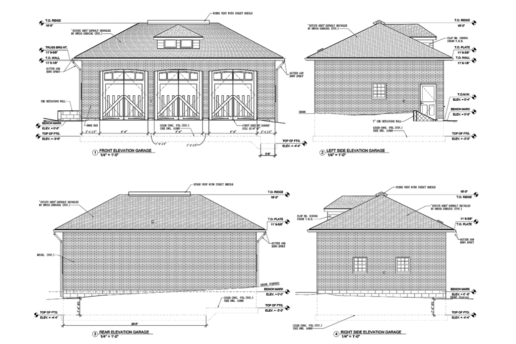
Residential Garage
Construction-ready drawings developed for permitting approval and clear execution.
SCOPE:
Design of a new detached three-car garage with capacity for up to six vehicles. Each bay will be equipped with a car lift, allowing one vehicle to be stored above another.
CHALLENGES:
- The new structure needed to match the architectural style of
the existing home. - The interior must be designed to allow full wash-down
capability throughout the garage
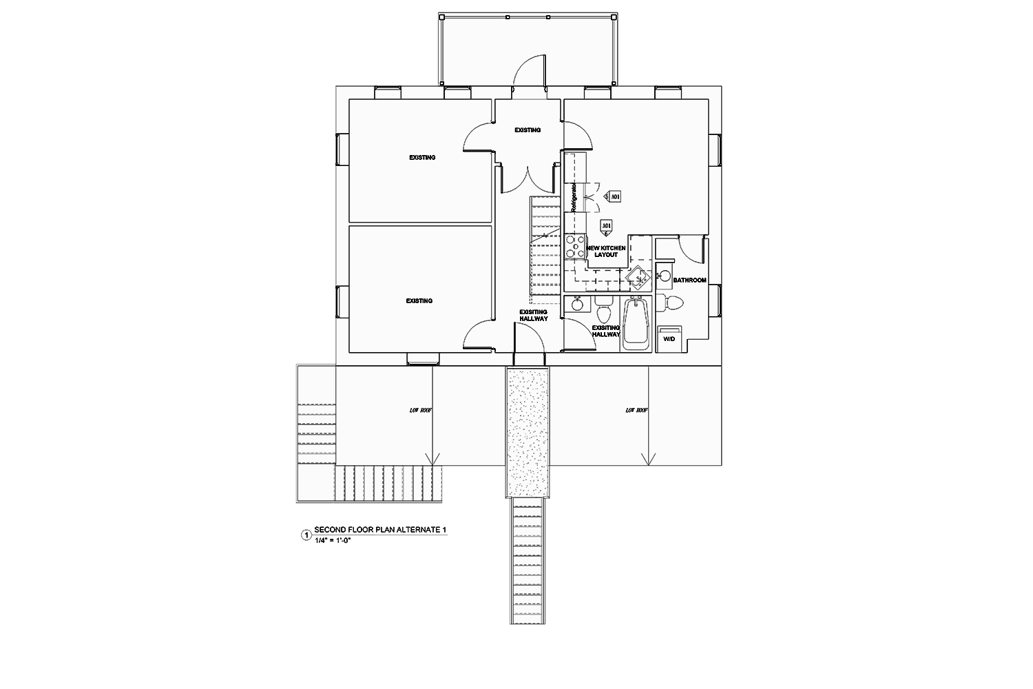
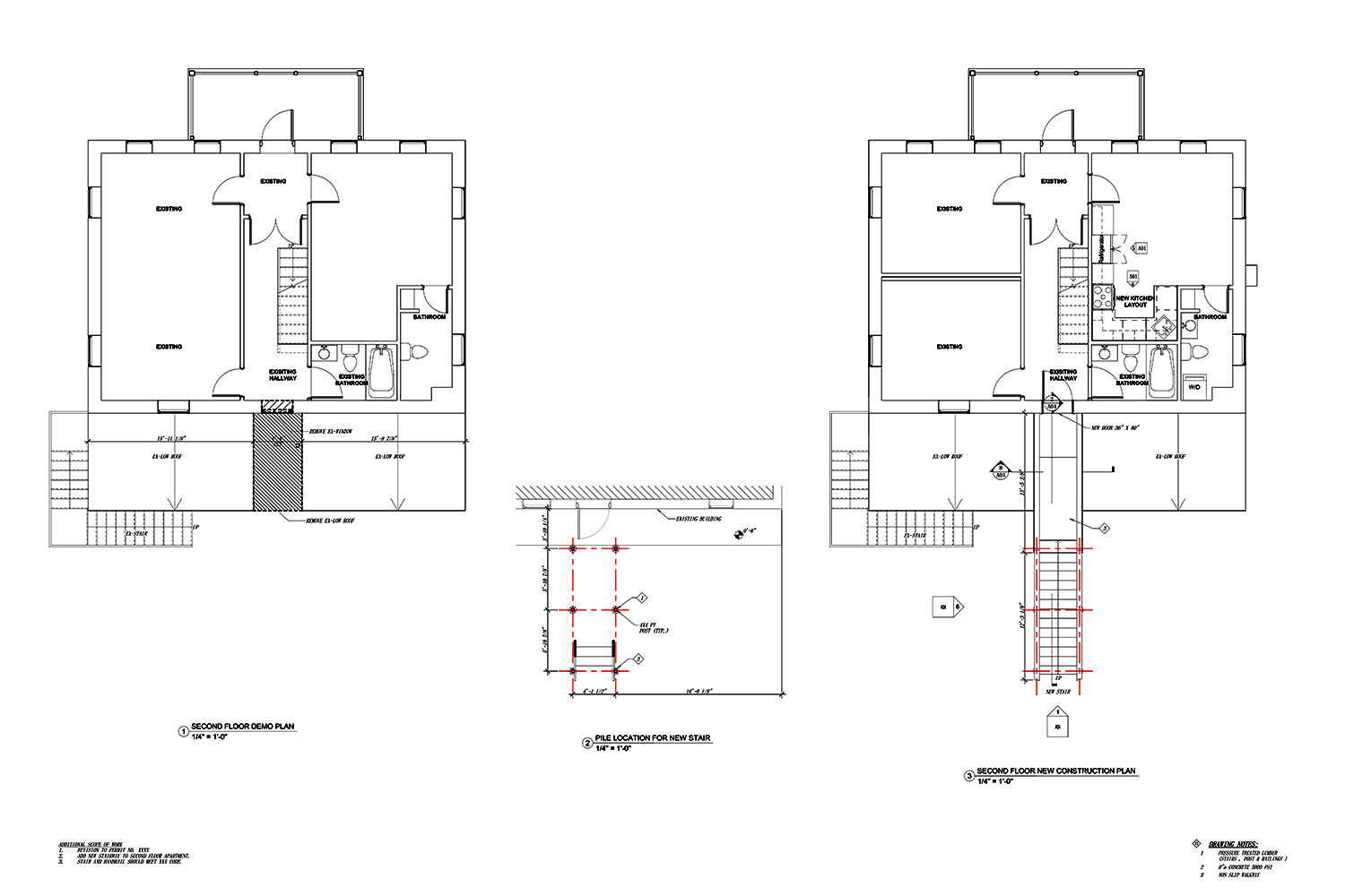
Residential Home Project
Comprehensive residential drawings supporting home upgrades and renovations.
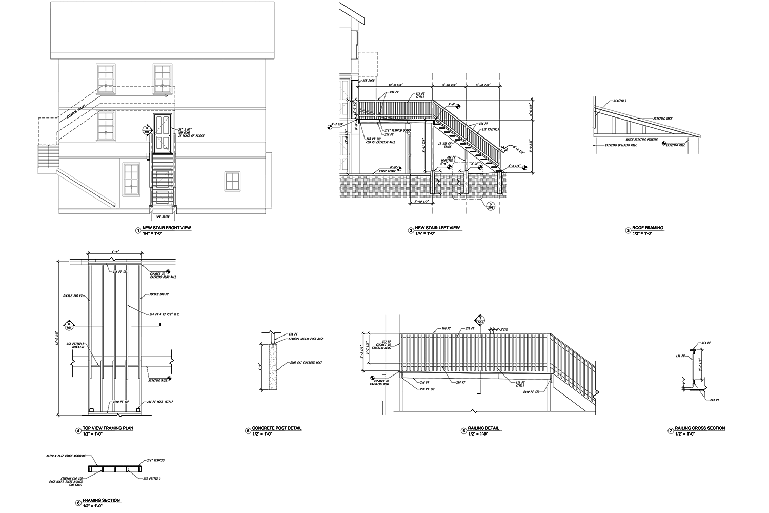
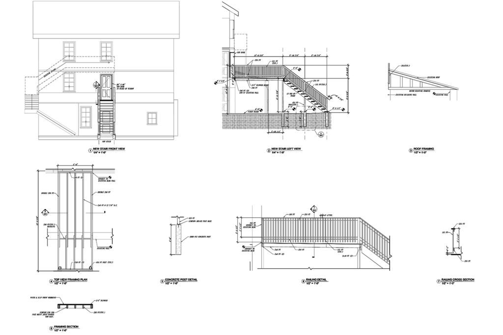
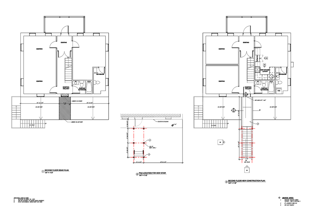
SCOPE : Add new stairway to the second floor apartment.
Why Choose DJM CAD Design
- Fast turnaround to keep your project moving
- Accurate, permit-ready documentation
- Experience across residential and commercial projects
- Clear communication from start to finish
- Scalable support for projects of any size
Simple, Streamlined Process

Share Your Vision
Send us your sketches, ideas,
or existing plans
We Create the Drawings
Our team develops detailed CAD
drawings tailored to your project
Ready for Permits & Build
Receive finalized drawings ready
for submission and construction.
Let’s Get Your Project Moving
Whether you’re planning a home renovation or a commercial upgrade,
DJM Design CAD & Coordination is ready to bring your vision to paper
— and get it approved.











